Análisis y Valoración Proyecto Murcia Estación de wecity
Informe del Proyecto de Crowdfunding Inmobiliario Murcia Estación que consiste en financiar la transformación de un local comercial situado en Murcia, para convertirlo en un edificio residencial compuesto 10 estudios y 5 apartamentos. La operación se estructura mediante un préstamo con una rentabilidad anual estimada del 11% y un plazo inicial de 12 meses
CROWDFUNDING INMOBILIARIOWECITYANÁLISIS PROYECTO
Inversión por cambio de uso en Murcia
El Proyecto Murcia Estación, publicado en la plataforma de financiación participativa Wecity, plantea una operación de deuda destinada a financiar la transformación de un activo inmobiliario en la ciudad de Murcia. En concreto, el promotor busca financiación para ejecutar la reconversión de un local comercial en un conjunto residencial compuesto por varias unidades de pequeño formato.
La operación se estructura mediante un préstamo hipotecario con garantía de primer grado, con un plazo inicial de 12 meses y una rentabilidad anual estimada del 11%. Este tipo de proyectos se enmarca dentro de las estrategias de financiación alternativa utilizadas por promotores para acometer desarrollos o transformaciones inmobiliarias sin recurrir exclusivamente a financiación bancaria tradicional.
Desde el punto de vista del inversor en crowdfunding inmobiliario, se trata de una oportunidad basada en la revalorización de un activo mediante cambio de uso y posterior venta de las viviendas resultantes. El retorno esperado dependerá de la correcta ejecución de la obra, la evolución del mercado residencial en la zona y la capacidad del promotor para comercializar las unidades dentro del plazo previsto.
Características Destacadas del Proyecto
Plataforma / Fecha lanzamiento: wecity / 13 marzo 2026
Alta Wecity con Plan Amigo 50€ con el código: KAC4B0
Toda la información y opinión sobre wecity aquí.
Tipo de operación
Tipo de inversión: Préstamo inmobiliario (crowdlending).
Destino de los fondos: Ejecución de obra para transformar un local comercial en viviendas.
Promotor: SANLOSI PATRIMONIO SL.
Importe total del préstamo: 550.000 €.
La financiación se articula mediante un préstamo a tipo fijo concedido al promotor, que se utilizará para ejecutar el proyecto de reconversión del inmueble.
Rentabilidad y condiciones financieras
Tipo de interés anual: 11 %.
Rentabilidad total estimada: 11 %.
Plazo del préstamo: 12 meses.
Posible prórroga: hasta 6 meses adicionales.
Periodo mínimo obligatorio: 6 meses.
Pago de intereses: al vencimiento junto con la devolución del capital.
Este tipo de estructura implica que el inversor recibe capital e intereses en un único pago final, lo que aumenta la dependencia del éxito del proyecto en el momento de la desinversión.
Estructura de financiación del proyecto
El desarrollo cuenta con aportación de capital por parte del promotor y financiación participativa.
Aportación del promotor: 315.000 €.
Financiación solicitada en Wecity: 550.000 €.
Inversión mínima por inversor: 500 €.
Limitación inicial: máximo 500 € durante los primeros 30 minutos.
La participación del promotor con fondos propios es un factor relevante en este tipo de operaciones, ya que alinea parcialmente los intereses entre promotor e inversores.
Garantías y métricas de riesgo
El préstamo contará con garantía hipotecaria de primer grado sobre el activo inmobiliario.
Valoraciones del activo:
Tasación ECO actual: 498.953,32 €.
Tasación ECO en hipótesis de edificio terminado (HET): 1.444.652,55 €.
Indicadores LTV:
LTV actual: 110 % sobre el importe de préstamo total
LTV primera disposición: 44,47 %.
LTV sobre valor HET: 38,07 %.
Un LTV relativamente moderado sobre el valor estimado final puede aportar cierto margen de seguridad, aunque debe considerarse que dicho valor depende de la correcta finalización del proyecto.
Situación urbanística y comercial
Licencia de cambio de uso tramitada mediante declaración responsable.
Licencia de obra también gestionada mediante declaración responsable.
Comercialización aún no iniciada.
El retorno del proyecto se prevé mediante la venta de las 15 viviendas resultantes una vez finalizada la obra.
Descripción del proyecto inmobiliario
El activo se ubica en Carril Huerto Alix 36, en Murcia, en un entorno residencial consolidado.
Características del inmueble:
Superficie de suelo: 597,90 m².
Superficie edificable: 545 m².
Actuación prevista:
Segregación del local existente.
Cambio de uso de comercial a residencial.
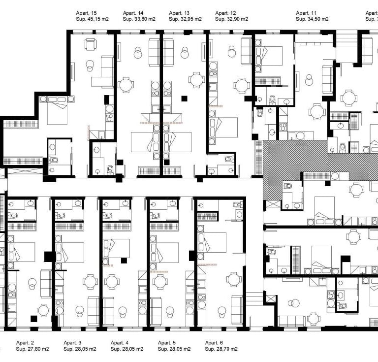
Creación de 15 unidades residenciales:
10 estudios.
5 apartamentos.
Este tipo de reconversión inmobiliaria busca aprovechar espacios comerciales que pueden tener menor demanda para generar viviendas de pequeño tamaño, que suelen orientarse a alquiler o primera vivienda.
Plano Local Previo vs Plano Proyecto
Tabla de Valoración Proyecto wecity
Puntuación Proyecto: 6 puntos
Estado Previo vs Obra terminada
Ventajas del Proyecto
Rentabilidad elevada para un plazo corto
Un tipo de interés anual del 11% para un plazo estimado de 12 meses sitúa esta operación dentro del rango alto de rentabilidad en proyectos de crowdlending inmobiliario.
Garantía hipotecaria de primer grado
La existencia de una hipoteca sobre el activo otorga a los inversores una posición preferente frente a otros acreedores en caso de ejecución.
Participación económica del promotor
La aportación de 315.000 € por parte del promotor demuestra implicación financiera directa en el proyecto.
Proyecto basado en reconversión de activo
La transformación de locales en viviendas es una estrategia relativamente frecuente en mercados urbanos con demanda residencial.
Desventajas y riesgos de la inversión
Pago de intereses únicamente al vencimiento
Los inversores no reciben pagos periódicos, por lo que el retorno depende completamente del éxito final del proyecto.
Ausencia de preventas
El promotor aún no ha iniciado la comercialización de las viviendas, lo que introduce incertidumbre sobre el ritmo de ventas.
Dependencia de la venta final de las unidades
La salida del inversor se basa en la venta de los 15 apartamentos, por lo que el resultado está ligado a la demanda del mercado local.
Riesgo de retrasos en obra o comercialización
Los proyectos de reforma o cambio de uso pueden sufrir retrasos administrativos, constructivos o comerciales.
Posible prórroga del préstamo
Aunque el plazo inicial es de 12 meses, existe la posibilidad de ampliarlo hasta 18 meses
Conclusión
El Proyecto Murcia Estación presenta una estructura típica de financiación participativa basada en deuda, con una rentabilidad anual del 11% y un plazo relativamente corto. La operación se centra en la reconversión de un local comercial en 15 unidades residenciales en la ciudad de Murcia, con la expectativa de obtener retorno mediante su posterior venta.
Desde el punto de vista de análisis, destacan positivamente la existencia de garantía hipotecaria de primer grado y la aportación de capital del promotor. Estos factores suelen ser considerados por los inversores como elementos de mitigación de riesgo dentro de este tipo de proyectos.
No obstante, también existen elementos que conviene valorar con cautela, como la ausencia de preventas, el pago único al vencimiento, el alto LTV actual del préstamo y la dependencia del éxito comercial de las viviendas. Como ocurre en cualquier inversión en crowdfunding inmobiliario, el resultado final estará condicionado por la correcta ejecución del proyecto y la evolución del mercado inmobiliario local durante el periodo de inversión.
Valoración del Proyecto Murcia Estación* : 6 puntos
* Este informe tiene carácter exclusivamente informativo y educativo y no constituye, en ningún caso, asesoramiento financiero, recomendación de inversión ni una oferta o solicitud para invertir.
El análisis realizado no tiene en cuenta las circunstancias personales, objetivos financieros ni el perfil de riesgo de cada inversor, por lo que cada lector debe realizar su propio análisis y tomar sus decisiones de forma independiente. La información contenida en este informe se ha elaborado a partir de datos públicos y de la documentación facilitada por la plataforma de crowdfunding y otras fuentes consideradas fiables en el momento de su publicación. No obstante, dicha información puede estar sujeta a errores, omisiones o modificaciones posteriores, sin que Sumainversión garantice su exactitud, integridad o actualización permanente.
La inversión en proyectos de crowdfunding inmobiliario conlleva riesgos, incluida la posible pérdida total o parcial del capital invertido, y las rentabilidades pasadas o estimadas no garantizan resultados futuros.
Sumainversión no asume responsabilidad alguna por las decisiones de inversión que los lectores puedan adoptar basándose total o parcialmente en la información aquí contenida. Se recomienda consultar con un asesor financiero profesional antes de realizar cualquier inversión.
* Contenido meramente informativo y educativo. No constituye asesoramiento financiero ni recomendación de inversión. La información puede contener errores o quedar desactualizada. Cada inversor debe realizar su propio análisis y asumir los riesgos asociados.
Últimos artículos SumaInversión
Inversión y Finanzas
SumaInversión: Educación financiera para maximizar tu patrimonio.
* AVISO IMPORTANTE: Esta web no constituye asesoramiento financiero ni consejo de inversión. La información presentada es meramente informativa y debe ser evaluada de forma independiente. Se recomienda a los inversores realizar un análisis detallado y considerar su situación financiera particular, además de consultar con un asesor financiero antes de tomar cualquier decisión de inversión.
© 2026. All rights reserved.
