Análisis y Valoración Proyecto Málaga Distrito Zeta de wecity
Informe del Proyecto de Crowdfunding Inmobiliario Distrito Zeta que consiste en la financiación mediante préstamo con garantía hipotecaria para la adquisición de una parcela en Málaga, donde se construirán 55 viviendas VPPL. Ofrece una rentabilidad anual del 11% en un plazo de 6 meses, con un 60% de las viviendas ya adjudicadas.
CROWDFUNDING INMOBILIARIOWECITYANÁLISIS PROYECTO


Crowdfunding Inmobiliario en Málaga
El proyecto Málaga Distrito Zeta es una oportunidad de inversión en crowdfunding inmobiliario a través de la plataforma wecity, centrada en la financiación de la adquisición y gastos de urbanización de una parcela ubicada en el Distrito Zeta de Málaga, una de las zonas urbanísticas más prometedoras y modernas de la ciudad.
El préstamo ofrece un tipo de interés anual del 11%, con una rentabilidad total estimada del 5,50% para un plazo de 6 meses (con posibilidad de prórroga de tres meses adicionales). Se trata de un préstamo con garantía hipotecaria de primer grado, lo que otorga a los inversores una capa adicional de seguridad frente a posibles impagos.
El promotor del proyecto es la cooperativa Ora Málaga S. Coop. And., que destinará los fondos a completar la compra del terreno y cubrir los costes de urbanización. Este proyecto se enmarca dentro del desarrollo de 55 viviendas de protección pública (VPPL), de las cuales 33 ya están adjudicadas (aproximadamente un 60%), lo que refleja un grado avanzado de comercialización y compromiso por parte de los cooperativistas.
Características Destacadas del Proyecto
Plataforma / Fecha lanzamiento: wecity / 24 octubre 2025
Alta Wecity con Plan Amigo 50€ con el código: KAC4B0
Promotor: Ora Málaga S. Coop. And.
Tipo de activo: Préstamo con garantía hipotecaria de primer grado
Destino del préstamo: Adquisición del terreno y gastos de urbanización
Importe del préstamo: 1.175.000 €
Aportación del promotor: 1.045.000 €
Plazo: 6 meses (+3 meses de posible prórroga)
Tipo de interés: 11,00% anual
Rentabilidad total estimada: 5,50%
Pago de intereses: A vencimiento
Inversión mínima: 500 €
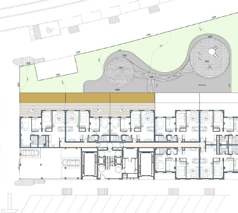
Ubicación: Manzana R12, Distrito Zeta (Málaga)
Garantía hipotecaria: 1er grado sobre el activo
Tasación actual (ECO2): 2.195.888,70 €
Tasación HET (Edificio Terminado): 13.674.918,25 €
LTV actual: 53,51%
LTV sobre HET: 8,59%
Toda la información y opinión sobre wecity aquí.
La salida del préstamo para los inversores está prevista una vez se obtenga la licencia de obras y se formalice la entrada de financiación bancaria, momento en el que se producirá la devolución del capital invertido junto con los intereses generados. Este proceso permite una rotación rápida del capital, al vincular el reembolso a hitos concretos del proyecto y al acceso del promotor a financiación tradicional.
Ubicación de la inversión
El Distrito Zeta, donde se ubica la promoción, destaca por su enfoque sostenible y su integración de infraestructuras modernas. Se encuentra cerca del Parque Tecnológico de Andalucía (PTA), el Aeropuerto de Málaga-Costa del Sol y el Centro Comercial Plaza Mayor, además de contar con excelentes conexiones por metro y autovía. Todo ello sitúa al proyecto en un entorno con potencial de crecimiento urbano y revalorización inmobiliaria.


Tabla de Valoración Proyecto wecity
Puntuación Proyecto: 7.5 puntos






Ventajas del Proyecto
Alta rentabilidad a corto plazo: Un 11% anual con vencimiento a 6 meses es una rentabilidad notablemente superior a la media del mercado para préstamos con garantía hipotecaria.
Garantía hipotecaria de primer grado: Proporciona protección adicional en caso de impago del promotor, al otorgar prioridad en la recuperación del capital.
LTV moderado: El 53,51% sobre la tasación actual y un bajo 8,59% sobre el valor del edificio terminado indican un nivel de riesgo controlado.
Compromiso del promotor: Aportación de 1.045.000 € propios, lo que demuestra implicación financiera en el desarrollo.
Ubicación estratégica: El Distrito Zeta es un área de expansión con infraestructuras modernas, buenas comunicaciones y fuerte demanda residencial.
Promoción avanzada comercialmente: Con un 60% de las viviendas ya adjudicadas, se reduce el riesgo de falta de demanda.
Desventajas y riesgos de la inversión
Dependencia de financiación bancaria: La salida de los inversores está vinculada a la entrada de financiación bancaria, lo que podría generar retrasos si las condiciones del mercado cambian.
Riesgo del sector inmobiliario: Fluctuaciones en los costes de construcción, demoras administrativas o variaciones en la demanda de vivienda pueden afectar la rentabilidad final.
Riesgo crediticio del promotor: Aunque respaldado por garantía hipotecaria, siempre existe el riesgo de impago parcial o total.
Conclusión
El Proyecto Málaga Distrito Zeta en wecity ofrece una rentabilidad atractiva en un plazo corto, respaldada por una garantía hipotecaria de primer grado y con un LTV conservador que mejora la posición de los inversores frente a posibles impagos.
El emplazamiento en uno de los desarrollos urbanos más innovadores de Málaga, junto con el grado de preventa y la aportación significativa del promotor, constituyen señales positivas de solidez. Sin embargo, el inversor debe considerar los riesgos inherentes al sector inmobiliario, los riesgos por retrasos administrativos y la posibilidad de prórrogas en la devolución del capital.
En conjunto, se trata de una oportunidad de inversión con perfil de riesgo medio, adecuada para inversores que buscan rentabilidad a corto plazo y que estén dispuestos a asumir los riesgos propios del crowdfunding inmobiliario.
* Este informe no constituye asesoramiento financiero ni consejo de inversión. La información presentada es meramente informativa y debe ser evaluada de forma independiente. Se recomienda a los inversores realizar un análisis detallado y considerar su situación financiera particular, además de consultar con un asesor financiero antes de tomar cualquier decisión de inversión.
Valoración del Proyecto Málaga Distrito Zeta* : 7.5 puntos
Inversión y Finanzas
SumaInversión: Educación financiera para maximizar tu patrimonio.
* AVISO IMPORTANTE: Esta web no constituye asesoramiento financiero ni consejo de inversión. La información presentada es meramente informativa y debe ser evaluada de forma independiente. Se recomienda a los inversores realizar un análisis detallado y considerar su situación financiera particular, además de consultar con un asesor financiero antes de tomar cualquier decisión de inversión.
© 2026. All rights reserved.
