Análisis y Valoración del Proyecto DOMO-ZARAGOZA-7 de Domoblock
Informe del Proyecto de Inversión Inmobiliaria DOMO-ZARAGOZA-7 que consiste en una operación de préstamo participativo para la transformación de un activo en Zaragoza a través de un cambio de uso y una reforma integral para su posterior venta. La inversión plantea un plazo estimado de 12 meses y una rentabilidad objetivo del 12,05%
DOMOBLOCKCROWDFUNDING INMOBILIARIOANÁLISIS PROYECTO
1/24/2026


Inversión para cambio de uso en Zaragoza
El proyecto DOMO-ZARAGOZA-7 es una operación de préstamo inmobiliario participativo promovida por Domoblock a través de su plataforma de inversión colaborativa. La estrategia se centra en la transformación de un activo existente mediante cambio de uso y reforma integral, con el objetivo final de vender las viviendas resultantes y repartir la plusvalía obtenida entre los inversores.
La inversión plantea un plazo estimado de 12 meses y una rentabilidad total objetivo del 12,05%, lo que sitúa el proyecto en un rango de retorno medio-alto dentro del segmento de préstamos inmobiliarios de corta duración. No se trata de una inversión garantizada ni de renta fija, ya que la rentabilidad depende del éxito de la venta final del activo.
El proyecto se ubica en Zaragoza, una ciudad que combina precios inmobiliarios aún contenidos con una demanda residencial estable, especialmente en zonas consolidadas próximas al centro urbano.
Características del Proyecto
Plataforma / Fecha Preventa: Domoblock - 28 enero 2026 (Enlace de alta en Domoblock para beneficiarte de BONO Amigo de 50€)
Tipo de proyecto: Compra, cambio de uso, reforma y venta.
Tipo de inversión: El instrumento utilizado es un préstamo participativo vinculado a plusvalía, en el que el inversor presta capital a la promotora y participa en los beneficios generados tras la venta del inmueble. La rentabilidad no es un cupón fijo, sino que depende del resultado económico del proyecto.
Toda la Información y Opinión sobre Domoblock aquí.
Plazo y rentabilidad
Plazo objetivo: 12 meses
Rentabilidad total estimada: 12,05%
TIR estimada: 12,05%
En caso de que la desinversión se retrase, existe la posibilidad de prórroga, lo que puede afectar tanto al plazo real como a la rentabilidad anualizada efectiva.
Ubicación del activo: Calle Braulio Foz, 2, Zaragoza (España)
Se trata de una zona urbana consolidada, bien comunicada y con acceso a servicios básicos, lo que favorece la liquidez del producto terminado una vez reformado.
Descripción del activo y estrategia
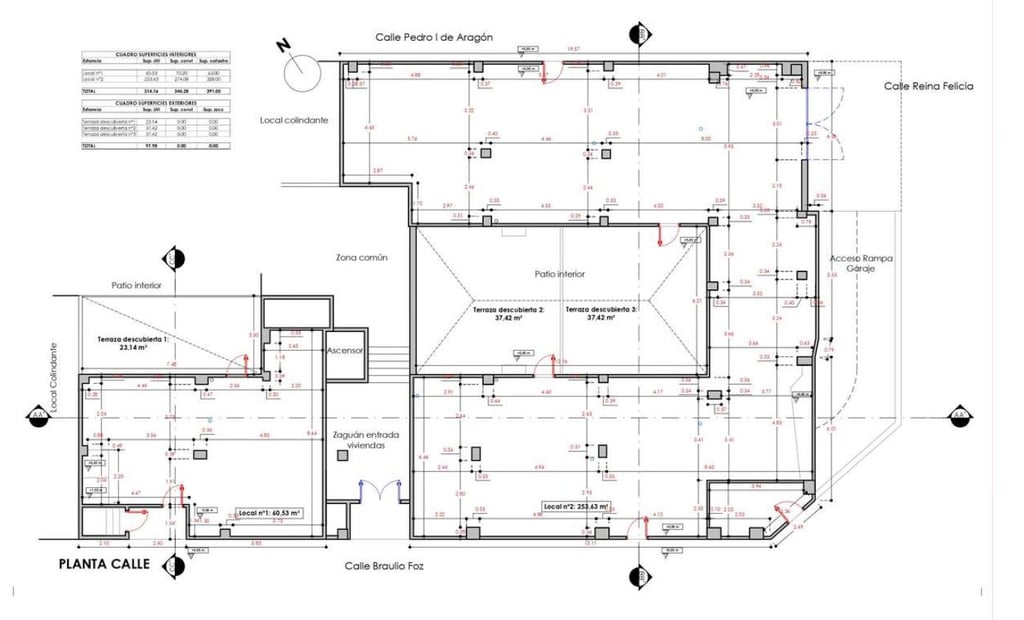
El proyecto contempla el cambio de uso de un local y su conversión en cinco viviendas residenciales, diseñadas para responder a la demanda habitual de la zona: unidades compactas, funcionales y orientadas tanto a compradores finales como a inversores patrimoniales.Distribución de las viviendas: El conjunto residencial queda configurado de la siguiente manera:
Total viviendas: 5
Viviendas de 1 dormitorio: 2
Viviendas de 2 dormitorios: 3
Superficies totales:
Superficie útil conjunta: 285,51 m²
Superficie construida conjunta: 330,73 m²
Desde el punto de vista del producto inmobiliario:
Las viviendas de 2 dormitorios ofrecen un perfil más versátil, adecuado para familias pequeñas o alquiler residencial estable.
Las unidades de 1 dormitorio presentan un formato más compacto, enfocado a parejas o perfiles individuales, habituales en entornos urbanos.
Destaca especialmente la Vivienda 4, que es la de mayor superficie útil, lo que previsiblemente le otorga un mejor posicionamiento comercial.
Colaboración Domoblock – PropHero
El proyecto se desarrolla en colaboración con PropHero, que participa como socio estratégico en la promoción y, especialmente, en la comercialización final de las viviendas. Esta asociación introduce un elemento adicional de alineación de intereses, ya que PropHero cuenta con experiencia previa en análisis de mercado y venta de activos residenciales. Al finalizar el cambio de uso, se contará con contrato de arras para la compra de los pisos por parte de PropHero.
No obstante, aunque la colaboración puede contribuir a reducir el riesgo comercial, no elimina la incertidumbre inherente al mercado inmobiliario ni garantiza que la venta se produzca en los plazos o precios inicialmente previstos.
Plan amigo Domoblock
Si estás interesado en invertir en este u otro proyecto de Domoblock, puedes darte de alta con el siguiente enlace y te beneficiaras de un BONO AMIGO de 50€:
Fechas estimadas del proyecto:
Ubicación del proyecto:
La ubicación del proyecto, en la calle Braulio Foz de Zaragoza, se sitúa en un entorno urbano consolidado, próximo al centro de la ciudad y con buena conexión a los principales ejes de transporte. Se trata de una zona con acceso a servicios básicos, comercio de proximidad y equipamientos públicos, lo que favorece una demanda residencial estable tanto para compra como para alquiler. Desde el punto de vista de la inversión inmobiliaria, este tipo de ubicaciones intermedias suelen ofrecer un equilibrio entre liquidez y precio
Plano actual del local
Plano cambio de uso
Evaluación Proyecto Domoblock
Puntuación Proyecto: 6.5 puntos


Ventajas Proyecto
Rentabilidad objetivo competitiva para un plazo de 12 meses dentro del crowdfunding inmobiliario.
Ubicación en ciudad consolidada, con demanda residencial estructural y precios menos tensionados que en grandes capitales como Madrid o Barcelona.
Diversificación interna del activo, al tratarse de cinco viviendas en lugar de una única unidad.
Participación del promotor en el capital del proyecto, lo que alinea parcialmente los intereses con los inversores.
Colaboración con un tercero especializado en comercialización, lo que puede facilitar la salida del activo.
Plazo relativamente corto, adecuado para inversores que buscan rotación de capital.
Desventajas y riesgos
Rentabilidad no garantizada, ya que depende del precio final de venta y de la ejecución del proyecto.
Riesgo de retrasos en licencias, obras o comercialización, habitual en proyectos de cambio de uso.
Complejidad jurídica y técnica, al intervenir cambio de uso, reforma integral y posterior desinversión.
Conclusión
El Proyecto DOMO-ZARAGOZA-7 es una propuesta de inversión inmobiliaria colaborativa orientada a la obtención de plusvalías en un plazo aproximado de un año. Su rentabilidad objetivo del 12,05% resulta atractiva dentro del contexto actual, especialmente para inversores que buscan alternativas a la renta fija tradicional.
Sin embargo, se trata de una inversión con riesgo medio, dependiente de la correcta ejecución de la reforma. La colaboración entre Domoblock y PropHero aporta un respaldo operativo adicional, pero no elimina los riesgos inherentes al modelo.
Desde una perspectiva de Sumainversion, este proyecto puede encajar como parte de una cartera diversificada, siempre que el inversor sea consciente de la naturaleza participativa del préstamo, del carácter no garantizado de la rentabilidad y de la importancia de no concentrar un porcentaje elevado del capital en una única operación.
* Este informe no constituye asesoramiento financiero ni consejo de inversión. La información presentada es meramente informativa y debe ser evaluada de forma independiente. Se recomienda a los inversores realizar un análisis detallado y considerar su situación financiera particular, además de consultar con un asesor financiero antes de tomar cualquier decisión de inversión.
Nota obtenida por Proyecto DOMO-ZARAGOZA-7 es*: 6.5 puntos
Plan amigo Domoblock
Si estás interesado en invertir en este u otro proyecto de Domoblock, puedes darte de alta con el siguiente enlace y te beneficiaras de un BONO AMIGO de 50€:
Revisa nuestros últimos análisis de proyectos de Crowdfunding Inmobiliario:
Inversión y Finanzas
SumaInversión: Educación financiera para maximizar tu patrimonio.
* AVISO IMPORTANTE: Esta web no constituye asesoramiento financiero ni consejo de inversión. La información presentada es meramente informativa y debe ser evaluada de forma independiente. Se recomienda a los inversores realizar un análisis detallado y considerar su situación financiera particular, además de consultar con un asesor financiero antes de tomar cualquier decisión de inversión.
© 2026. All rights reserved.

