Análisis y Valoración del Proyecto DOMO-VALENCIA-30 de Domoblock
Informe del Proyecto de Inversión Inmobiliaria DOMO-VALENCIA-30. El proyecto consiste en la compra, reforma y venta de un activo inmobiliario en el centro de Valencia, con un plazo estimado de 7 meses y una rentabilidad anual prevista del 12,26% mediante un préstamo participativo de tipo plusvalía.
DOMOBLOCKCROWDFUNDING INMOBILIARIOANÁLISIS PROYECTO
10/11/2025
Inversión House Flipping en Valencia
El proyecto DOMO-VALENCIA-30 es una propuesta de inversión inmobiliaria colaborativa promovida por Domoblock Real Estate Investment S.L., estructurada mediante un préstamo participativo. La operación consiste en la reforma integral y posterior venta de una vivienda de alto nivel ubicada en la Avenida del Oeste 32, en pleno centro de Valencia, dentro del distrito de Ciutat Vella, una de las zonas más demandadas y con mayor atractivo residencial y turístico de la ciudad.
El objetivo es obtener una plusvalía tras la revalorización del inmueble, ofreciendo a los inversores una rentabilidad total estimada del 6,88% en un plazo de 7 meses, lo que equivale a una TIR anualizada del 12,26%.
Este análisis tiene como objetivo evaluar los principales aspectos del proyecto DOMO-VALENCIA-30, sus características financieras y operativas, así como las ventajas y riesgos potenciales que debe considerar un inversor antes de participar.
Características del Proyecto
Plataforma / Fecha Preventa: Domoblock - 16 Octubre 2025 (Enlace de alta en Domoblock para beneficiarte de BONO Amigo de 50€)
Tipo de inversión: préstamo participativo con reparto de plusvalía.
Nombre del token: DOMO-VALENCIA-30 (DOMO-VLC-30).
Número de tokens emitidos: 8.326,883.
Precio unitario: 100 €.
Importe total a financiar: 832.688 €.
Rentabilidad total estimada: 6,88 % (en 7 meses).
Rentabilidad anualizada (TIR): 12,26 %.
Ubicación: Avenida del Oeste 32, Valencia (España).
Plazo estimado: 7 meses, con posible prórroga hasta 12.
Promotor: Domoblock Real Estate Investment S.L.
Participación del promotor: 5 % del capital (41.634,41 €).
Toda la Información y Opinión sobre Domoblock aquí.
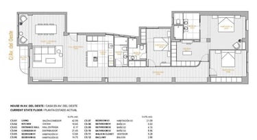
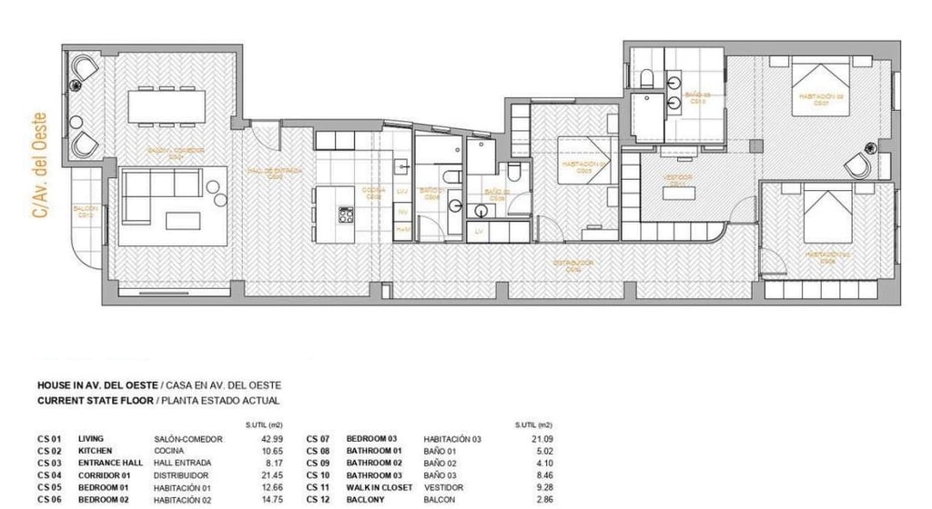
El inmueble, de 199 m², se reformará íntegramente para transformarse en una vivienda de lujo con tres dormitorios, tres baños (dos en suite), vestidor, salón-comedor de 43 m² y cocina moderna equipada. Tras la reforma, se espera una mejora significativa en eficiencia energética, reduciendo entre un 59 % y 72 % el consumo energético y entre un 55 % y 79 % las emisiones de CO₂ respecto al estado original.
La operación prevé la compra, reforma y venta en un periodo corto, alineándose con la estrategia de “house flipping” que caracteriza los proyectos de Domoblock.
Resumen financiero de la operación
El proyecto DOMO-VALENCIA-30 tiene un presupuesto total estimado de 832.688 €, financiado mediante la emisión de 8.326,883 tokens de 100 € cada uno. El promotor Domoblock aporta el 5 % del capital (41.634 €), mientras que los inversores cubren el 95 % restante (791.054 €) a través de préstamos participativos.
El inmueble se adquirirá por 540.000 €, con un coste total de adquisición (impuestos, comisiones y notaría) de 616.950 €. La reforma integral y los gastos asociados ascienden a 168.238 €, a lo que se suman los honorarios de gestión (23.000 €) y otros costes operativos, alcanzando el importe total de inversión.
Se estima una venta del activo por 890.000 €, lo que generaría un beneficio neto del proyecto de 57.312 € y una rentabilidad total del 6,88 % para el inversor, equivalente a una TIR anualizada del 12,26 % en un plazo de 7 meses.
En caso de que la venta se produzca antes del plazo previsto, la rentabilidad anualizada podría aumentar proporcionalmente. Si, por el contrario, el proceso se retrasa, el contrato contempla la posibilidad de prórroga hasta 12 meses, manteniendo el objetivo de devolución íntegra del capital y de los intereses pactados.
Plan amigo Domoblock
Si estás interesado en invertir en este u otro proyecto de Domoblock, puedes darte de alta con el siguiente enlace y te beneficiaras de un BONO AMIGO de 50€:
Ubicación del proyecto:
El proyecto se ubica en la Avenida del Oeste, en pleno centro de Valencia, una de las zonas más consolidadas y dinámicas de la ciudad. Su localización estratégica, próxima a áreas comerciales, turísticas y residenciales, aporta un alto potencial de revalorización al activo reformado. Esta ubicación favorece la demanda sostenida de vivienda y locales, lo que convierte al proyecto en una oportunidad interesante dentro del mercado inmobiliario valenciano, caracterizado por su estabilidad y crecimiento moderado en los últimos años.
Fechas estimadas del proyecto:
Plano actual del inmueble
Plano inmueble reformado
Evaluación Proyecto Domoblock
Puntuación Proyecto: 7.5 puntos
Ventajas Proyecto
Alta rentabilidad a corto plazo: la TIR del 12,26 % en solo 7 meses sitúa este proyecto entre las operaciones más rentables del mercado de crowdfunding inmobiliario español.
Ubicación prime: el barrio de San Francesc, en el centro histórico de Valencia, es un área consolidada con alta demanda, escasa oferta y potencial de revalorización.
Participación del promotor: Domoblock invierte un 5 % del capital, lo que refuerza la alineación de intereses con los inversores.
Fondo de garantía interno: Domoblock dispone de un mecanismo que puede compensar parcialmente a los inversores en caso de rendimientos inferiores al 5 %.
Duración limitada: el corto plazo del préstamo permite rotación ágil del capital, aspecto valorado por inversores que buscan liquidez periódica.
Desventajas y riesgos
Riesgo de mercado: la rentabilidad depende directamente del precio final de venta. Si la vivienda se vende por debajo del valor previsto (890.000 €), los beneficios podrían reducirse.
Dependencia del equipo gestor: aunque el equipo de Domoblock tiene experiencia, el éxito depende de su ejecución operativa y capacidad de venta.
Riesgo de ejecución: como en todo proyecto inmobiliario, existen posibles retrasos o desviaciones en plazos y costes que podrían afectar la rentabilidad final.
Conclusión
El proyecto DOMO-VALENCIA-30 representa una inversión inmobiliaria colaborativa de perfil dinámico y tecnológico, que combina la financiación mediante préstamo participativo con el potencial del mercado inmobiliario. La rentabilidad esperada (12,26 % TIR anual) es atractiva en comparación con productos tradicionales, pero se asocia a riesgos inherentes del mercado inmobiliario y a la estructura subordinada del instrumento.
El activo se ubica en un entorno con demanda consolidada y elevado valor patrimonial, lo que refuerza el potencial de plusvalía. Sin embargo, los inversores deben tener presente la falta de liquidez, el riesgo de retrasos y la dependencia del resultado de la venta.
Desde Sumainversion, se valora este proyecto como una oportunidad interesante para inversores con perfil de riesgo medio, interesados en operaciones a corto plazo con retorno potencial elevado, siempre dentro de una estrategia diversificada que limite la exposición a un único activo o promotor.
* Este informe no constituye asesoramiento financiero ni consejo de inversión. La información presentada es meramente informativa y debe ser evaluada de forma independiente. Se recomienda a los inversores realizar un análisis detallado y considerar su situación financiera particular, además de consultar con un asesor financiero antes de tomar cualquier decisión de inversión.
Nota obtenida por Proyecto DOMO-VALENCIA-30 es notable*: 7.5 puntos
Plan amigo Domoblock
Si estás interesado en invertir en este u otro proyecto de Domoblock, puedes darte de alta con el siguiente enlace y te beneficiaras de un BONO AMIGO de 50€:
Revisa nuestros últimos análisis de proyectos de Crowdfunding Inmobiliario:
Inversión y Finanzas
SumaInversión: Educación financiera para maximizar tu patrimonio.
* AVISO IMPORTANTE: Esta web no constituye asesoramiento financiero ni consejo de inversión. La información presentada es meramente informativa y debe ser evaluada de forma independiente. Se recomienda a los inversores realizar un análisis detallado y considerar su situación financiera particular, además de consultar con un asesor financiero antes de tomar cualquier decisión de inversión.
© 2026. All rights reserved.

