Análisis y Valoración del Proyecto Bouzas de Urbanitae en Vigo
Informe del Proyecto Bouzas de crowdfunding inmobiliario que consiste en la concesión de un préstamo destinado a financiar la adquisición de dos suelos urbanos en Vigo, donde se prevé desarrollar una promoción residencial de 13 viviendas plurifamiliares y un activo adicional destinado a coliving. La operación se estructura como una inversión de deuda a 12 meses con una rentabilidad anual del 11%
CROWDFUNDING INMOBILIARIOURBANITAEANÁLISIS PROYECTO
3/5/2026


Crowdfunding Inmobiliario en Vigo
El Proyecto Bouzas es una oportunidad de inversión inmobiliaria estructurada mediante deuda dentro de la plataforma Urbanitae. La operación consiste en la concesión de un préstamo destinado a financiar parcialmente la adquisición de dos suelos urbanos situados en el barrio de Bouzas, en la ciudad de Vigo.
El objetivo del proyecto es desarrollar una promoción residencial de viviendas plurifamiliares junto con un activo adicional destinado a coliving. La inversión se articula a través de un préstamo con tipo de interés fijo anual del 11% y un plazo estimado de 12 meses, con pago de intereses y devolución del capital al vencimiento.
La estrategia de salida prevista para los inversores es la refinanciación mediante un préstamo promotor bancario una vez que el proyecto alcance dos hitos clave: la obtención de la licencia de obras y un nivel mínimo de preventas exigido por la entidad financiera.
El importe total del préstamo asciende a 955.000 euros, financiado íntegramente por los inversores de la plataforma. El préstamo cuenta con diversas garantías, entre ellas hipoteca de primer rango sobre uno de los suelos y pignoración de participaciones y cuentas de la sociedad propietaria del activo.
Se trata, por tanto, de una inversión de deuda a corto plazo vinculada a una fase inicial del desarrollo inmobiliario, centrada en la adquisición del suelo y la preparación del proyecto hasta su financiación bancaria.
Características del Proyecto
Plataforma / Fecha lanzamiento: Urbanitae - 9 marzo 2026 (Alta Urbanitae con Plan Amigo 150€)
Objetivo del préstamo: financiar parcialmente la compra de dos suelos urbanos y costes asociados a la adquisición.
Localización: Calle Tomás Alonso, 230, Vigo
Modalidad: financiación vía deuda a tipo fijo.
Sociedad prestataria: BEIRAMAR BOUZAS, S.L. (SPV del proyecto).
Más información sobre Urbanitae aquí.
Condiciones financieras
Importe total del préstamo: 955.000 €
Tipo de interés: 11% anual simple
Rentabilidad total estimada: 11%
Plazo previsto: 12 meses
Posible extensión: hasta 6 meses adicionales
Pago de intereses: al vencimiento junto con el principal
Amortización anticipada: permitida con retorno mínimo equivalente a 6 meses de intereses
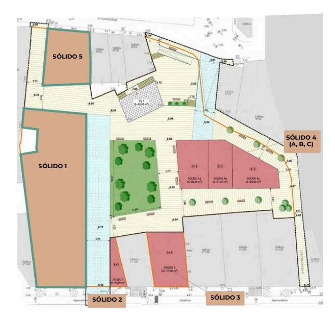
Activos incluidos en el proyecto
Sólido 1 (uso residencial)
Edificabilidad aproximada: 1.471 m²
Desarrollo previsto: 13 viviendas plurifamiliares
Tipologías: viviendas de 1 y 2 dormitorios
Cada unidad incluirá plaza de garaje y trastero
Sólido 5 (uso terciario)
Participación actual del 60,8% en régimen de proindiviso
Destinado a un futuro proyecto de coliving que se desarrollaría en una fase posterior
Situación urbanística
Proyecto ubicado dentro del Polígono nº6 del Plan Especial de Protección y Reforma Interior (PEPRI) del casco histórico de Bouzas.
El ámbito urbanístico contempla el desarrollo global de cinco edificios residenciales con 27 viviendas y un inmueble con uso terciario.
Las obras de urbanización ya están finalizadas y recepcionadas por el ayuntamiento, por lo que los terrenos tienen la condición de suelo urbano finalista.
Promotor del proyecto
Gestor: Ledicia Real Estate.
Origen: grupo inmobiliario gallego fundado en 2022.
Actividad principal: promoción inmobiliaria, reformas de edificios, cambios de uso y gestión de activos inmobiliarios.
Experiencia en la plataforma: tercer proyecto financiado en Urbanitae.
Uso de los fondos
El capital aportado por los inversores se destinará principalmente a:
financiar parte del precio de adquisición de los suelos
cubrir parte del IVA derivado de la compra
asumir costes asociados a la operación
El promotor aportará fondos propios para completar la compra y cubrir gastos iniciales del proyecto hasta la obtención de licencia de obras.
Garantías del préstamo
El préstamo cuenta con varias garantías principales:
Hipoteca de primer rango sobre el suelo residencial (Sólido 1) con responsabilidad hipotecaria del 140%.
Prenda sobre las participaciones sociales de la sociedad propietaria del proyecto.
Pignoración de las cuentas bancarias de la SPV.
Prenda sobre la cuenta de IVA del proyecto, con mecanismo de barrido de caja.
Prenda sobre derechos de crédito de otros proyectos del promotor hasta cubrir el repago total del préstamo.
Estrategia de salida
La devolución del préstamo está prevista mediante refinanciación bancaria una vez que se cumplan dos hitos clave:
Obtención de la licencia de obras.
Alcanzar aproximadamente el 50% de preventas de las viviendas.
Con la concesión del préstamo promotor por parte de una entidad financiera, se cancelará el préstamo otorgado por los inversores.
Calendario estimado del proyecto
Marzo 2026: concesión del préstamo de los inversores.
Segundo trimestre 2026: solicitud de licencia de obras e inicio de comercialización.
Primer trimestre 2027: obtención de licencia y nivel de preventas requerido.
Primer trimestre 2027: refinanciación bancaria y devolución de la inversión.
Ubicación del proyecto
Ciudad: Vigo
Zona: barrio de Bouzas, área costera consolidada con tradición marinera.
Entorno: barrio urbano en proceso de renovación con creciente atractivo residencial.
Localización:
Rúa Tomás A. Alonso, 230
Rúa Covadonga, 16

Plan amigo
Si estás interesado en este u otro proyecto de Urbanitae, puedes darte de alta con el siguiente enlace y te beneficiaras de un abono de hasta 75€ en la primera inversión:
Evaluación Proyecto Urbanitae
Puntuación Proyecto: 6 puntos


Ventajas Proyecto
Rentabilidad elevada dentro del crowdfunding inmobiliario
El tipo de interés del 11% anual se sitúa por encima de la media de muchas operaciones de deuda inmobiliaria en plataformas de financiación participativa.Garantía hipotecaria de primer rango
La presencia de una hipoteca sobre uno de los suelos aporta una capa adicional de protección frente a operaciones sin garantía real.Suelo urbano finalista
El hecho de que la urbanización esté completada reduce parte del riesgo urbanístico asociado al desarrollo del activo.Promotor con conocimiento del mercado local
El gestor tiene experiencia previa en operaciones inmobiliarias en Vigo y dispone de estructura propia de comercialización.Mercado residencial con demanda estable
Vigo presenta una demanda relativamente sostenida de vivienda, impulsada por su papel como principal ciudad económica de Galicia.
Desventajas y Riesgos
Dependencia de la obtención de licencia de obras
El calendario del proyecto está condicionado a la aprobación administrativa del proyecto técnico. Retrasos en la concesión de la licencia podrían prolongar el plazo de la inversión.Necesidad de alcanzar preventas para la refinanciación
La devolución del préstamo depende de que se consiga el nivel de preventas exigido por la banca para conceder el préstamo promotor.Participación parcial en uno de los activos
El suelo destinado a coliving se encuentra actualmente en régimen de proindiviso y el promotor está negociando adquirir el resto de la titularidad.Dependencia de la financiación bancaria
La estrategia de salida se basa en que una entidad financiera conceda el préstamo promotor. Cambios en las condiciones del crédito podrían afectar al calendario de repago.
Conclusión
El Proyecto Bouzas es una operación de financiación inmobiliaria a corto plazo vinculada a la adquisición de suelo para una promoción residencial en Vigo. La inversión ofrece una rentabilidad del 11% anual con un plazo previsto de 12 meses, situándose en el rango alto de retornos dentro del crowdfunding inmobiliario.
La operación cuenta con ciertos elementos que pueden resultar positivos para el inversor, como la garantía hipotecaria de primer rango, la condición de suelo urbano finalista y la ubicación en un mercado residencial consolidado.
Sin embargo, también existen factores de riesgo relevantes. El reembolso del préstamo depende de dos hitos clave: la obtención de la licencia de obras y el nivel de preventas necesario para acceder a financiación bancaria. Además, el pago de intereses al vencimiento implica que el retorno está sujeto al cumplimiento del plan de negocio.
En conjunto, se trata de una inversión típica de financiación puente en fase temprana de desarrollo, que puede resultar adecuada para inversores que buscan rentabilidades elevadas en el corto plazo y que comprendan los riesgos asociados a este tipo de operaciones dentro del crowdfunding inmobiliario.
La nota obtenida por el Proyecto Bouzas es *: 6 puntos
* Este informe tiene carácter exclusivamente informativo y educativo y no constituye, en ningún caso, asesoramiento financiero, recomendación de inversión ni una oferta o solicitud para invertir.
El análisis realizado no tiene en cuenta las circunstancias personales, objetivos financieros ni el perfil de riesgo de cada inversor, por lo que cada lector debe realizar su propio análisis y tomar sus decisiones de forma independiente. La información contenida en este informe se ha elaborado a partir de datos públicos y de la documentación facilitada por la plataforma de crowdfunding y otras fuentes consideradas fiables en el momento de su publicación. No obstante, dicha información puede estar sujeta a errores, omisiones o modificaciones posteriores, sin que Sumainversión garantice su exactitud, integridad o actualización permanente.
La inversión en proyectos de crowdfunding inmobiliario conlleva riesgos, incluida la posible pérdida total o parcial del capital invertido, y las rentabilidades pasadas o estimadas no garantizan resultados futuros.
Sumainversión no asume responsabilidad alguna por las decisiones de inversión que los lectores puedan adoptar basándose total o parcialmente en la información aquí contenida. Se recomienda consultar con un asesor financiero profesional antes de realizar cualquier inversión.
* Contenido meramente informativo y educativo. No constituye asesoramiento financiero ni recomendación de inversión. La información puede contener errores o quedar desactualizada. Cada inversor debe realizar su propio análisis y asumir los riesgos asociados.
Plan amigo
Si estás interesado en este u otro proyecto de Urbanitae, puedes darte de alta con el siguiente enlace y te beneficiaras de un abono de hasta 75€ en la primera inversión:
Revisa los últimos análisis de proyectos de Crowdfunding de Sumainversión:
Inversión y Finanzas
SumaInversión: Educación financiera para maximizar tu patrimonio.
* AVISO IMPORTANTE: Esta web no constituye asesoramiento financiero ni consejo de inversión. La información presentada es meramente informativa y debe ser evaluada de forma independiente. Se recomienda a los inversores realizar un análisis detallado y considerar su situación financiera particular, además de consultar con un asesor financiero antes de tomar cualquier decisión de inversión.
© 2026. All rights reserved.


