Análisis y Valoración del Nuevo Proyecto Bayer Benicasim de Civislend
Informe del Proyecto Bayer Benicasim de crowdfunding inmobiliario que consiste en la financiación mediante préstamo con garantía hipotecaria de primer rango para completar la construcción de un edificio residencial plurifamiliar en el centro de Benicasim. El préstamo ofrece un TIN del 10% a 18 meses.
CROWDFUNDING INMOBILIARIOCIVISLENDANÁLISIS PROYECTO
11/26/2025


Crowdlending Inmobiliario en Benicasim
El Proyecto Bayer Benicasim es una oportunidad de financiación participativa inmobiliaria promovida a través de Civislend. Se trata de un préstamo con garantía hipotecaria de primer rango destinado a cubrir los costes pendientes de construcción de un edificio residencial plurifamiliar compuesto por cuatro viviendas y un local comercial. La promoción se ubica en el Paseo Pérez Bayer, una de las principales arterias de Benicasim, un municipio con elevada demanda residencial y actividad comercial consolidada.
El préstamo ofrece un Tipo de Interés Nominal (TIN) del 10,00%, con un plazo de 18 meses y una rentabilidad total estimada del 15,00% mediante pago de intereses en modalidad bullet, es decir, con abono íntegro al vencimiento. Para el inversor, este proyecto se presenta como una operación de deuda respaldada por un activo en fase de obra avanzada y con licencia en vigor, características que permiten un análisis basado en criterios de riesgo, liquidez y valor del colateral.
Información General del Proyecto
Plataforma / Fecha lanzamiento: Civislend / 28 noviembre 2025 (Alta Civislend con Plan Amigo 75€).
Préstamo con garantía hipotecaria de primer rango sobre el activo.
Importe solicitado: 775.000 €.
Pago de intereses al vencimiento del préstamo.
Posibilidad de amortización anticipada sin penalización a partir del mes 6.
Prórroga opcional del préstamo hasta 6 meses adicionales por parte del promotor.
Toda la Información y Opinión sobre Civislend aquí.
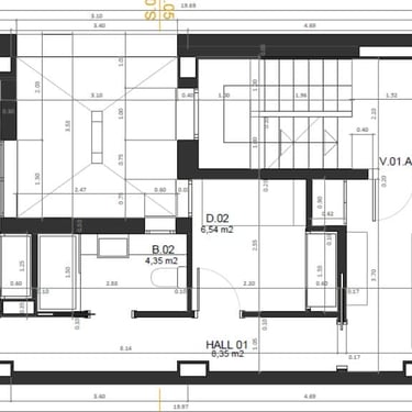
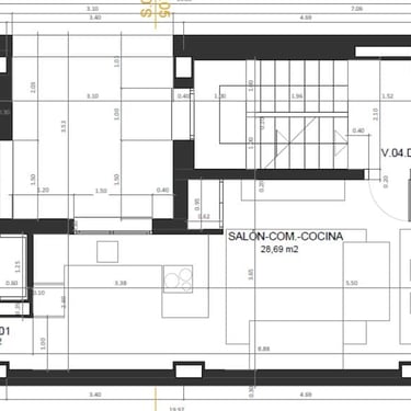
Descripción del activo
Edificio residencial de cuatro viviendas (2 y 3 dormitorios), con terrazas y orientación sureste.
Un local comercial en planta baja con fachada a una de las principales vías del municipio.
Superficie construida total prevista: 592 m².
Parcela de 131 m².
Estado de obra: 18% ejecutado.
Licencia de obras en vigor.
Datos económicos relevantes
Valor de tasación actual del activo: 511.394 €.
Valor HET: 1.490.950 €.
Aportación del promotor al proyecto: 377.910 € (33% del total).
LTV primera disposición: 21%, basado en 105.076 € frente al valor de tasación.
LTV sobre valor HET total: 52%.
Promotor
Mittode, promotora con actividad desde 2010 en la Comunidad Valenciana.
Más de 60 viviendas entregadas en proyectos anteriores.
Este es el segundo proyecto financiado en Civislend por el promotor, con el primero avanzando según su plan de negocio.
Estado Previo vs Estado Final
Fechas importantes del proyecto:
Plan amigo
Si estás interesado en este u otro proyecto de Civislend, puedes darte de alta con el siguiente enlace y te beneficiaras de un abono de hasta 75€ en la primera inversión.
Evaluación del Proyecto Civislend
Puntuación Proyecto: 7.5 puntos


Ventajas Proyecto
1. Garantía hipotecaria sólida: El préstamo está respaldado por una garantía hipotecaria de primer rango sobre un activo bien ubicado y con obra avanzada, lo que prioriza a los inversores en caso de ejecución y aporta una cobertura relevante frente a imprevistos.
2. Baja exposición inicial: El LTV del 21% en la primera disposición implica una exposición reducida en las primeras fases del préstamo, algo especialmente relevante para proyectos en construcción donde los riesgos suelen concentrarse al inicio.
3. Ubicación con demanda contrastada: El Paseo Pérez Bayer es una zona céntrica con demanda residencial y comercial estable, lo que favorece la comercialización futura de las viviendas y, por tanto, la devolución del préstamo.
4. Promotor con experiencia: Mittode acumula más de una década de actividad y proyectos entregados en la zona. Su historial, junto con el buen desarrollo de su primer proyecto financiado con Civislend, aporta mayor consistencia operativa.
5. Alineación de intereses: El promotor contribuye con un 33% del total del proyecto mediante fondos propios, lo que reduce su dependencia de financiación externa y demuestra compromiso financiero.
6. Activo ya iniciado: Con un 18% de obra ejecutada y la licencia ya obtenida, se minimizan riesgos iniciales relacionados con trámites administrativos y fases preliminares de construcción, aportando mayor visibilidad del avance.
Desventajas y riesgos de la inversión
1. Riesgos inherentes a proyectos en construcción: Aunque la obra está en marcha, sigue pendiente la mayor parte de la ejecución, lo que puede derivar en retrasos, incrementos de costes, problemas con contratistas o desviaciones en el calendario previsto.
2. Dependencia de la venta para devolver el préstamo: La devolución del capital e intereses depende exclusivamente de la comercialización de las viviendas y del local, por lo que una ralentización del mercado o un menor ritmo de ventas puede afectar la capacidad de reembolso.
3. Valor de tasación inferior al importe financiado: La tasación actual de 511.394 € se sitúa por debajo del total del préstamo, lo que en caso de ejecución anticipada podría limitar la recuperación completa del capital por parte de los inversores.
4. Entorno económico variable: Factores externos como cambios en los costes de construcción, inflación, tipos de interés o un enfriamiento del mercado inmobiliario pueden influir negativamente en los plazos de ejecución, la venta de las unidades y, en último término, la devolución del préstamo.
Conclusión
El Proyecto Bayer Benicasim se presenta como una operación de préstamo inmobiliario con un nivel de garantías significativo y condiciones económicas atractivas para inversores con apetito por la renta fija privada respaldada por activos reales. Sus principales puntos fuertes son la ubicación céntrica del activo, el avance previo de la obra y un LTV inicial moderado.
No obstante, como cualquier inversión en construcción, implica riesgos asociados a la ejecución, la evolución del mercado y la comercialización final. La modalidad de intereses bullet y la posible prórroga deben formar parte de la consideración global del inversor, especialmente en términos de liquidez y horizonte temporal.
Para perfiles interesados en préstamos con garantía hipotecaria y dispuestos a asumir riesgos propios del sector inmobiliario en fase de obra, este proyecto puede resultar una alternativa a estudio dentro de una cartera diversificada.
* Este informe no constituye asesoramiento financiero ni consejo de inversión. La información presentada es meramente informativa y debe ser evaluada de forma independiente. Se recomienda a los inversores realizar un análisis detallado y considerar su situación financiera particular, además de consultar con un asesor financiero antes de tomar cualquier decisión de inversión.
Nota obtenida por el Proyecto Bayer Benicasim es *: 7.5 puntos
Plan amigo
Si estás interesado en este u otro proyecto de Civislend, puedes darte de alta con el siguiente enlace y te beneficiaras de un abono de hasta 75€ en la primera inversión.
Inversión y Finanzas
SumaInversión: Educación financiera para maximizar tu patrimonio.
* AVISO IMPORTANTE: Esta web no constituye asesoramiento financiero ni consejo de inversión. La información presentada es meramente informativa y debe ser evaluada de forma independiente. Se recomienda a los inversores realizar un análisis detallado y considerar su situación financiera particular, además de consultar con un asesor financiero antes de tomar cualquier decisión de inversión.
© 2026. All rights reserved.
